Price £575,000 - New Instruction


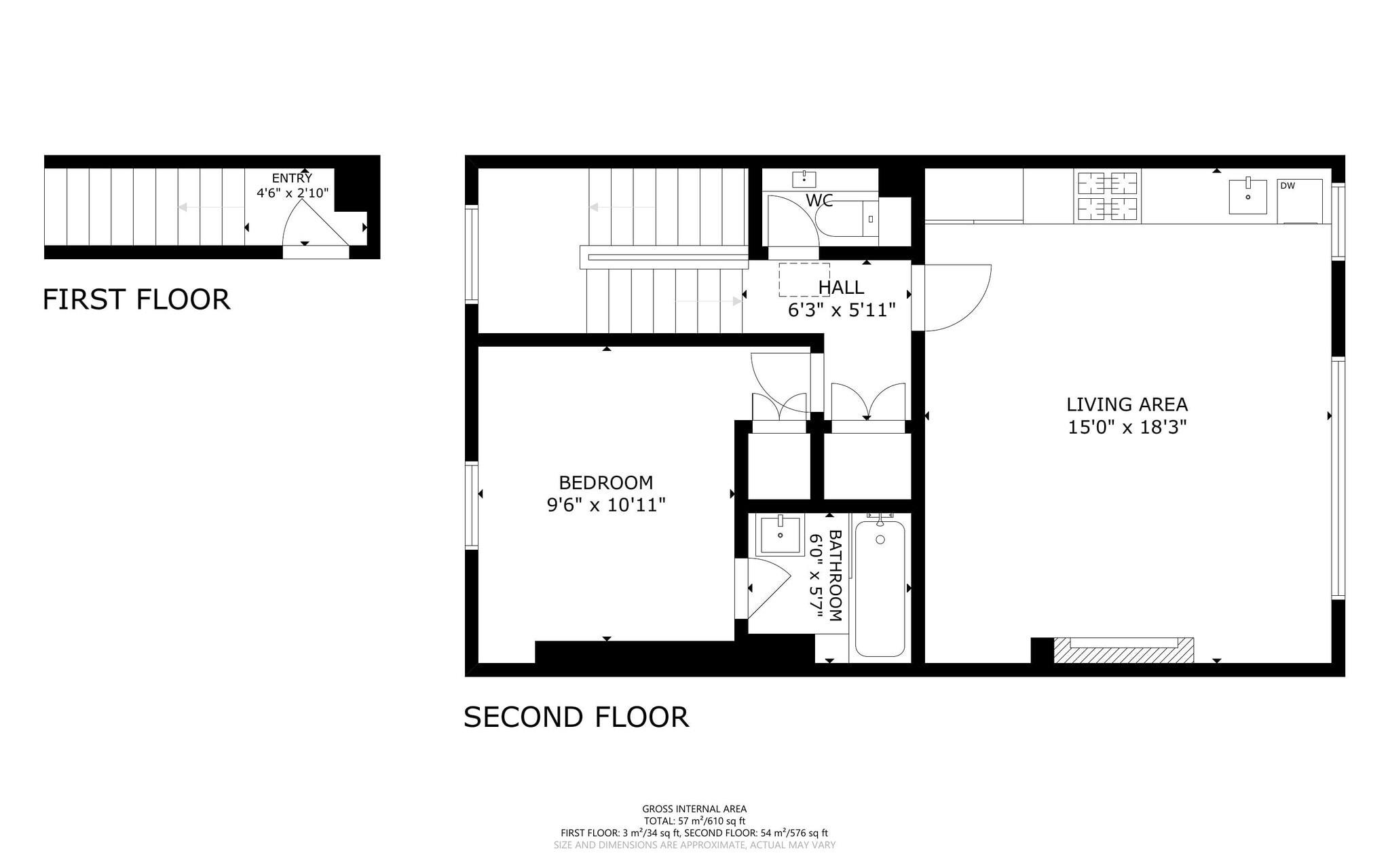
This charming property on Hazlitt Road offers a comfortable and stylish living space, perfect for singles or couples seeking a modern home in a prime location. Comprising 1 bedroom, 1 bathroom, and an additional WC,

It is located on the second floor, with the entrance on the first floor. The design features include big windows, high ceilings, and an abundance of natural light throughout, creating an inviting atmosphere. The property also boasts a private terrace, ideal for relaxation or entertaining, along with ample storage for added convenience.

Falling under Council Tax Band D, it is situated close to Kensington Station, offering excellent transport links and easy access to local amenities.

This is a fantastic opportunity to rent a well-appointed flat in one of Kensington's most desirable areas.



Notice
Please note we have not tested any apparatus, fixtures, fittings, or services. Interested parties must undertake their own investigation into the working order of these items. All measurements are approximate and photographs provided for guidance only.


/// sends.rock.legend is the what3words address for the best entrance. what3words has given every 3 metre square in the world a unique combination of 3 random words.

Floor Plan
EER Chart

The Energy-Efficiency Rating is a measure of a home's overall efficiency. The higher the rating, the more energy-efficient the home is, and the lower the fuel bills are likely to be.

Utility Supply Type
Electric Mains Supply
Gas Mains Supply
Water Mains Supply
Sewerage None
Broadband None
Telephone None

Other Items Description
Heating Gas Central Heating
Garden/Outside Space Yes
Parking No
Garage No

Broadband Coverage Highest Available Download Speed Highest Available Upload Speed
Standard 13 Mbps 1 Mbps
Superfast 80 Mbps 20 Mbps
Ultrafast 1000 Mbps 1000 Mbps

Mobile Coverage Indoor Voice Indoor Data Outdoor Voice Outdoor Data
EE Likely Likely Enhanced Enhanced
Three Enhanced Enhanced Enhanced Enhanced
O2 Enhanced Enhanced Enhanced Enhanced
Vodafone Likely Likely Enhanced Enhanced

Broadband and Mobile coverage information supplied by Ofcom.


marker icon